1 Bagni 65 m2
Caratteristiche principali
Codice
A000166
Prezzo
1.500 EUR / mese
Spese condominiali
600 EUR
Classe
D (201,14)
Locali
2
Altre caratteristiche e accessori
Stato Immobile
Buono
Grado
Signorile
Posizione
Centro Storico
Panorama
Vista Aperta
Piano
Piano Terra
Totale Piani
Tre
Lati Liberi
1
Arredi
Non Arredato
Riscaldamento
Autonomo
Tipo Riscaldam.
Pompa di Calore
Tipo Impianto
Aria
Fonte Energetica
Metano
Acqua Calda
Autonoma
Infissi
Alluminio Doppio Vetro
Serramenti
Buono
Persiana
Tapparella Metallo
Pavim. Cucina
Parquet
Pavim. Bagno
Ceramica
Pavimento
Parquet
Cauzione
Tre Mesi
Canoni Anticipati
Un Mese
Tipo Contratto
Commerciale
Numero Vetrine
Una
Tipo Registr.
Tradizionale
Accessori
Antifurto
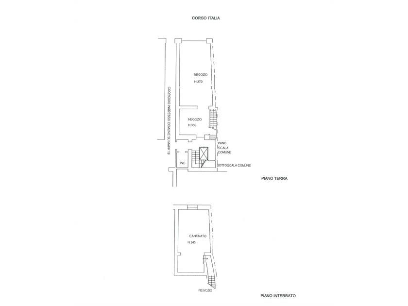
Novara corso Italia proponiamo in affitto negozio con grande vetrina formato da 2 locali e servizio a piano terreno, scala interna di accesso al sottonegozio. Servizio privato. Recentemente restaurato. Pavimento in parquet, riscaldamento con pompe di calore, impianto d'allarme, saracinesca elettrificata. Minime spese condominiali. Libero subito
corso italia , Novara (NO)
Cookie preference